成都市 141㎡ x 把三代人的生活脾性缝进家的DNA,客餐厅盛满人间烟火
一场始于“不喜欢”的共识 —— 五口之家的居住诉求落地
当十方一家转动新房钥匙走进新房时,精装房的既定样貌让他们有些失落:千篇一律的墙面、缺乏温度的材质、毫无个性的配色,完全没有「属于自己家」的感觉。 “我们一家五口,有老人有孩子,不想要复杂的造型,就想找个能让人静下心来、温馨又好打理的空间。”初次与设计师沟通时,十方开门见山地道出了核心诉求。 设计师未急于出方案,先抛出核心问题:“家里每个人有没有特别不喜欢的东西?或是生活里觉得不方便的地方?” 梳理后的需求清晰明了:母亲怕厨房难打理,爱人偏爱宽敞私密的卧室,孩子需要开阔的公共活动空间,而他自己,最看重进门即有的 “家的氛围感”,要藏着独属于这家人的居住 DNA。 十方偏爱中古风,可中古调性分野甚多 —— 现代中古的简约、包豪斯中古的利落、彩色中古的鲜活,单取其一,很难兼顾三代人的需求。 设计师由此敲定侘寂风与中古调性融合的方案:以侘寂的沉静契合长辈心境,以中古的复古呼应年轻人审美,耐脏好打理的材质,更能包容孩童的活泼天性。 这场以 “倾听需求、达成共识” 为起点的改造,尊重原户型优势,最终实现实用与美学共生,让承载三代人生活愿景的家,缓缓落地。
客厅
作为十方一家偏爱的区域,客厅的设计围绕着「沉静质感」展开,暖棕木调裹着米白软意,恰好是家最熨帖的模样。
阳台并入客厅,为公共区域增加更为宽敞的活动尺度。“墙面不用做复杂造型,颜色选温润一点的米白,材质要摸起来有肌理感。”沟通时,他特意强调。设计师最终选用石灰洗做墙面基底,搭配浅灰色亚麻质感的沙发,再以原木色边几点缀,恰好呼应了侘寂风格的经典调性。




不花俏不代表千篇一律的平淡,电视柜成为公共空间的亮点,它并非传统独立柜体,是与客厅空间融为一体的定制化背景墙式设计。
电视柜以柚木板材为基底,搭配石灰洗涂刷面板,中间穿插竖条肌理的深绿手工砖,给大面积的电视墙呼吸感与层次感,底部衬着黑纹窄砖的矮基,局部还点缀了自然石材纹理 —— 不同材质的温软、拙朴与细腻,在深色细边框的勾勒下,碰撞出不喧哗的高级感。






隐藏电视舱平时用素净面板遮挡,让墙面舒展成呼吸感载体;需要时打开,便成为家庭观影的核心区。底部嵌入仿真壁炉,入夜后暖光跃动,把温软裹进柜体的肌理里。阳台一侧特意留出置物槽,嵌入蓬勃绿植,让自然气息顺着柜体漫进客厅。
客厅没有多余的陈设,却成为十方全家日常休闲、孩子嬉戏、长辈看报的核心场景,氛围感渗透在每一处细节里。


餐厅
餐厅是这次改造的“点睛之笔”,更是全家使用频率最高的区域。横厅的舒展,让客餐厅的松弛感顺着暖调自然勾连 —— 这里从不是只装得下餐桌的功能区,而是客厅那抹暖棕的温柔延伸。


顺着柜体漫开的柚木,恰好与客厅电视柜的肌理轻轻衔住,稳稳续上整屋的温软基调。
中岛台的水洗石台面带着自然粗粝的颗粒感,裹着木色的柔软,悄悄漫开几分不刻意的野趣,连台面上的木碗,都衬得这“野”与“柔”愈发妥帖。


从玄关一路折进餐厅的组合柜,藏着满当当的生活巧思:鞋柜、收纳柜、茶水柜、家政柜…… 把日常琐碎妥帖收进肌理里,杂芜被藏得干净,只留素净米白与木纹交织的利落。餐边柜更像质感的容器:细木条的细腻,裹着洞石肌理的天然粗拙,连灯光落下来的弧度,都浸着裹满肌理的温润。


主卧
主卧的每一处设计,都精准接住了妻子的期待 ——“我喜欢宽敞的感觉,灯光别太刺眼,要温馨但不压抑。”这份直白的诉求,成了空间设计的核心脉络。

设计师没有改动原卧室的开间布局,转而用「放大空间感 + 优化灯光层次」的巧思回应期待。床头做无主灯设计,搭配壁灯和暗藏灯带,晚上起夜也不晃眼。
如今的主卧,以柚木色为温润基底,呼应着全屋侘寂与中古的调性,没有多余造型,只凭简约床品与软装勾勒出利落轮廓。原有的开间优势被最大化利用,走动间毫无局促感,仿佛整个空间都在温柔舒展。


待到夜幕降临,多重灯光层次次第亮起:暗藏灯带漫出柔和光晕,壁灯的暖光刚好裹住床头,能在起夜时避开刺眼强光。柚木的温润、床品的柔软、光影的恰到好处交织在一起,温馨感扑面而来,没有一丝压抑,恰好成为他们夫妻俩卸下一日疲惫的角落。

儿童房
儿童房的每一处设计,都是父母悄悄藏在空间里的温柔守护 —— 想让这里既是能安心蜷缩的软乎乎小窝,能跟着他的身高、喜好慢慢“长大”,更得留一方能由着他折腾、装下天马行空的小天地。
设计师延续全屋温润基调,以柚木为基底搭配柔和中性色,既呼应整体侘寂中古风格,也以舒缓色调适配孩子天性。
针对空间紧凑的特点,设计师采用榻榻米床 + 一体化柜体的组合优化布局:柜身的圆门洞造型既添童趣,又能收纳玩具、绘本,实现美观与实用兼具。


空间规划
SPATIAL PEANNING
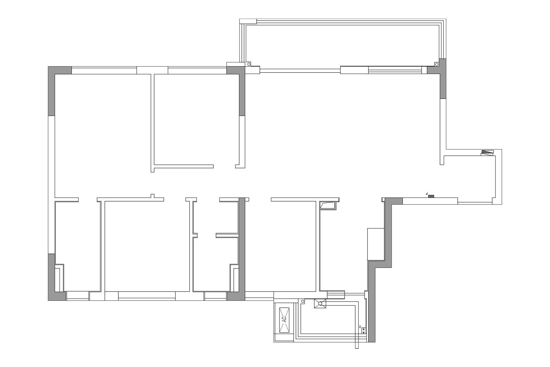
原始结构分析
Original structural analysis
① 功能区灵活性弱:横厅虽开阔,但原始户型中客餐厅较为狭长,休闲阳台占据公区较大的采光面积,然而对于十方一家而言使用机率不大。
② 灯光与细节设计不足:原始精装房的灯光系统单一,仅基础照明,缺乏分层照明,无法适配不同场景的氛围需求。
③ 储物空间的潜在不足:原始精装的储物设计偏基础,无法满足五口之家的收纳需求。

平面布局规划
Layout Planning
① 空间分区保持开阔,合理分区:用软隔断(弧形沙发 + 圆形茶几) 把横厅划分为客厅和餐厅,既保留了横厅的开阔感,又实现了功能分区,避免公共活动相互干扰。
② 扩张公区尺度感:将阳台并入室内,让客餐厅获得更开敞的空间,满足家人活动与孩子玩耍的合理动线。
③ 精准填补原始储物不足:布局中大量增加定制储物区:客厅电视墙、玄关到餐厅的组合柜,卧室配置独立衣柜、客餐厅搭配嵌入式储物柜、玄关补充入户储物,彻底解决了原始精装房“储物基础薄弱”的问题,满足 5 口人的储物需求。

对话业主
TALK TO THE HOMEOWNER
Q1:你家的装修风格是怎样的?核心诉求是什么?
A1:风格上就想弄那种能让人静下心来、感觉沉稳点儿的,偏一点点侘寂风,还带点儿中古调性。最核心的就是想体现出居住者也就是我们一家人的“DNA”嘛,一进门就能感觉到,我们喜欢啥样的调性、啥样的氛围,现在看来这一点完全达标啦。
Q2:你家是精装房,改造时主要做了哪些调整呢?
A2:这房子本来是精装房嘛,改造的时候把整个顶面和地面都拆了重新弄了一遍。整体就做了些简单优化,重点改的是餐厅和客厅中间那块儿,其他地方基本没怎么动。
Q3:你家哪个区域使用频率最高?设计上有什么亮点?
A3:家里用得最多的就是餐厅那块儿了!这儿做了岛台和餐桌连在一起的设计,还跟旁边的中岛搭配着。这餐桌看着挺长的,但放在空间里一点儿不显得臃肿。这个区域也是我们家里最舒适、最有设计感的地方,平时喝水啊、洗水果切水果啊、吃饭啊,都在这儿忙活。
Q4:整个装修过程是否顺利?你的期望值有什么变化?
A4:整个装修设计过程都挺顺利的。我们的期望值也不是越来越低,反而一直在往上提,越装到后面,就越想弄得精致点儿,让房子更适配空间,质感也更好点儿。所以我觉得找个专门的设计单位太重要了,能满足我们越来越高的需求,也算是对设计的尊重嘛。